跨 越 工 藝 & 美 術

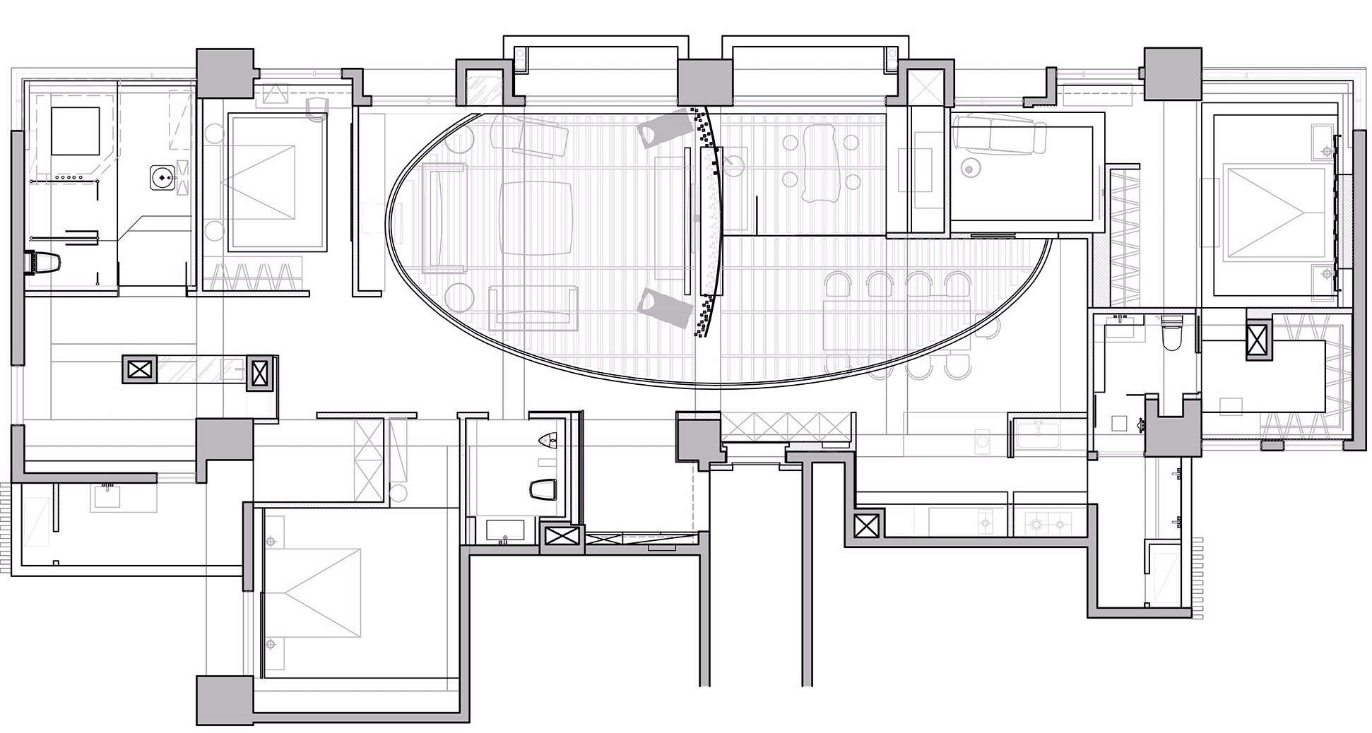
橢圓形&合併戶
此案原為兩戶已有隔間的合併戶,我們打破所有格局重新架構空間,藉由橢圓形格柵天花貫穿公領域空間,同時也將原有兩戶中間的大樑化於無形,在客廳天花格柵規劃上我們接納了專業音響廠商的建議,將格柵設計成不同角度的變化,讓音樂產生更好的音質擴散.........。






男主人是一位品味十足的美食家及烹飪專家, 經常性數十人的家庭聚會,都是由男主人一人親自下廚、操刀,選購義大品牌Tadeo的可拉長式長型餐桌,量身打造開放式的輕食區,玻璃拉門區隔了油煙的重食區,讓男主人能輕鬆寫意,盡情揮灑他高超的廚藝。
Mobirise themes are based on Bootstrap 3 and Bootstrap 4 - most powerful mobile first framework. Now, even if you're not code-savvy, you can be a part of an exciting growing bootstrap community.
Choose from the large selection of latest pre-made blocks - full-screen intro, bootstrap carousel, content slider, responsive image gallery with lightbox, parallax scrolling, video backgrounds, hamburger menu, sticky header and more.
Sites made with Mobirise are 100% mobile-friendly according the latest Google Test and Google loves those websites (officially)!
Mobirise themes are based on Bootstrap 3 and Bootstrap 4 - most powerful mobile first framework. Now, even if you're not code-savvy, you can be a part of an exciting growing bootstrap community.
Choose from the large selection of latest pre-made blocks - full-screen intro, bootstrap carousel, content slider, responsive image gallery with lightbox, parallax scrolling, video backgrounds, hamburger menu, sticky header and more.

豐富的感官體驗
我們將空間最好的視野景觀規劃成多用途的浴室湯屋,空間內運用天然石皮,柚木實木加上窗外的無敵景觀,讓這裡成為全家人最好的一個
可享樂、可放鬆的空間.........。


探 索 其 它 視 角"A"




探 索 其 它 視 角"B"








